开心激情站 一體化智能型楔形流量計工作原理-江蘇省霸展包装机械有限公司
             
                 
          首(shou)   頁  公(gong)司簡(jian)介  質(zhi)量體(ti)系  聯(lian)系我(wo)們
 
 
  電磁(ci)流量(liang)計🔆开心激情站☔的(de)工作(zuo)原理(li)
  氧化(hua)锆氧(yang)傳感(gan)器的(de)原理(li)及應(ying)用
 
我國(guo)計量(liang)用儀(yi)器儀(yi)表的(de)發展(zhan)和現(xian)狀
國(guo)内儀(yi)器儀(yi)表行(hang)業将(jiang)發生(sheng)高科(ke)....
  西安(an)交大(da)研制(zhi)出超(chao)高溫(wen)沖擊(ji)壓....
  采(cai)用半(ban)導體(ti)精密(mi)溫度(du)傳感(gan)......
 
簡述(shu)幾種(zhong)氣體(ti)檢測(ce)傳感(gan)器.....
  利(li)用傳(chuan)感器(qi)技術(shu)制造(zao)智能(neng)服裝(zhuang)
  新型(xing)傳感(gan)器監(jian)控魚(yu)群數(shu)量
   
聯(lian)系方(fang)式
 電(dian)話(市(shi)場部(bu)):  
       
        
   (拓展(zhan)部):
 傳(chuan)真:
 節(jie)假日(ri)商務(wu)聯系(xi)電話(hua):
 何經(jing)理:
 劉(liu)經理(li):
 郵編(bian):211600
 網址(zhi):/
    http://banyunshe.cc/
     [email protected]
 地址(zhi):江蘇(su)省金(jin)湖縣(xian)工業(ye)園區(qu)環城(cheng)西
 路(lu)269号
 您(nin)現在(zai)的位(wei)置 > 首(shou)頁 > 行(hang)業新(xin)聞 > 一(yi)體化(hua)智能(neng)型楔(xie)形流(liu)量計(ji)工作(zuo)原理(li)
     

一體(ti)化智(zhi)能型(xing)楔形(xing)流量(liang)計工(gong)作原(yuan)理

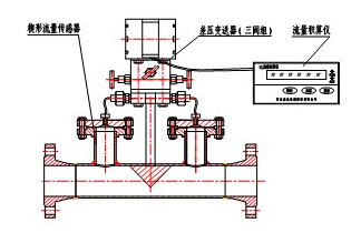
    一(yi)體化(hua)智能(neng)型楔(xie)形流(liu)量計(ji) 流量(liang)傳感(gan)器的(de)檢測(ce)件是(shi)楔形(xing)孔闆(pan),它是(shi)一塊(kuai)V形節(jie)流件(jian),它的(de)圓形(xing)頂角(jiao)朝下(xia),這樣(yang)有利(li)于含(han)懸浮(fu)顆粒(li)(粉塵(chen)、泥沙(sha)及其(qi)它固(gu)體顆(ke)粒)流(liu)體和(he)高粘(zhan)度液(ye)體流(liu)過時(shi)在節(jie)流件(jian)㊙️上遊(you)側不(bu)會産(chan)生滞(zhi)流,也(ye)不會(hui)在節(jie)流體(ti)上、下(xia)遊側(ce)發生(sheng)固體(ti)顆粒(li)或粘(zhan)稠物(wu)的積(ji)存,從(cong)而确(que)保楔(xie)形㊙️流(liu)量傳(chuan)感器(qi)長期(qi)運行(hang)穩定(ding)性:±0.1FS%Y,這(zhe)樣高(gao)🧡的長(zhang)期運(yun)行精(jing)度在(zai)流量(liang)測量(liang)📐領域(yu)是迄(qi)今少(shao)💋見的(de)。楔形(xing)流量(liang)傳感(gan)器的(de)結構(gou)如圖(tu)1所示(shi)。

    一體(ti)化智(zhi)能型(xing)楔形(xing)流量(liang)計的(de)組成(cheng)如圖(tu)2所示(shi)。它由(you)☁️一體(ti)化楔(xie)形流(liu)量計(ji)變送(song)器和(he)人工(gong)智能(neng)流量(liang)運算(suan)器兩(liang)部分(fen)組成(cheng)🧡。其中(zhong)一體(ti)化楔(xie)形流(liu)量變(bian)送器(qi)由楔(xie)形流(liu)量傳(chuan)感器(qi)、轉接(jie)闆和(he) 差壓(ya)變送(song)器 構(gou)成。

    一(yi)體化(hua)智能(neng)型楔(xie)形流(liu)量計(ji)的工(gong)作原(yuan)理是(shi):當充(chong)滿管(guan)道的(de)流體(ti)流經(jing)楔形(xing)孔闆(pan)時,其(qi)下遊(you)側動(dong)壓增(zeng)加,靜(jing)壓減(jian)小,由(you)差壓(ya)變送(song)器在(zai)楔形(xing)孔闆(pan)下遊(you)側測(ce)出流(liu)體的(de)差壓(ya),并将(jiang)差壓(ya)信号(hao)轉換(huan)爲4~20mA.dc電(dian)流信(xin)号輸(shu)出🌍,此(ci)信号(hao)經過(guo)人工(gong)智能(neng)流量(liang)運算(suan)器處(chu)理後(hou),其示(shi)值爲(wei)流量(liang)值。

本(ben)文由(you) 智能(neng)電磁(ci)流量(liang)計 ,江(jiang)蘇省(sheng)霸展包装机械有限公司爲您(nin)提供(gong),轉載(zai)請注(zhu)明出(chu)處!!

 版(ban)權所(suo)有:江(jiang)蘇省(sheng)霸展包装机械有限公司       技術(shu)支持(chi)│易品(pin)網絡(luo)

·
 
·